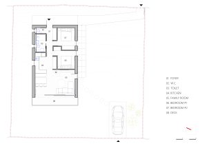
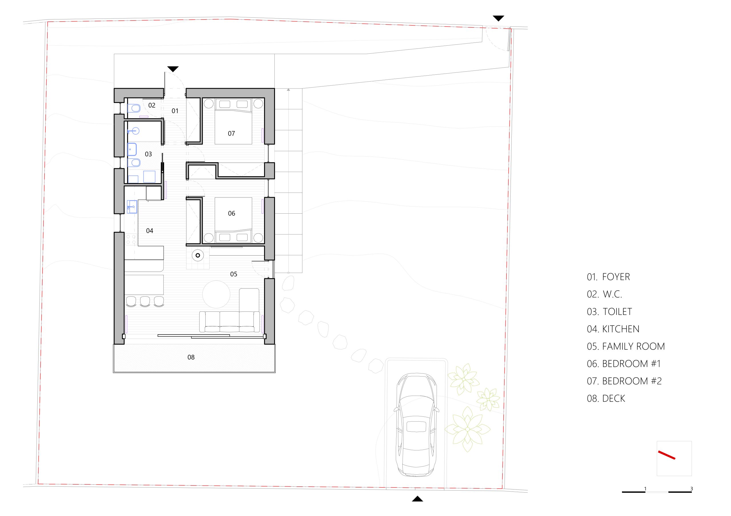
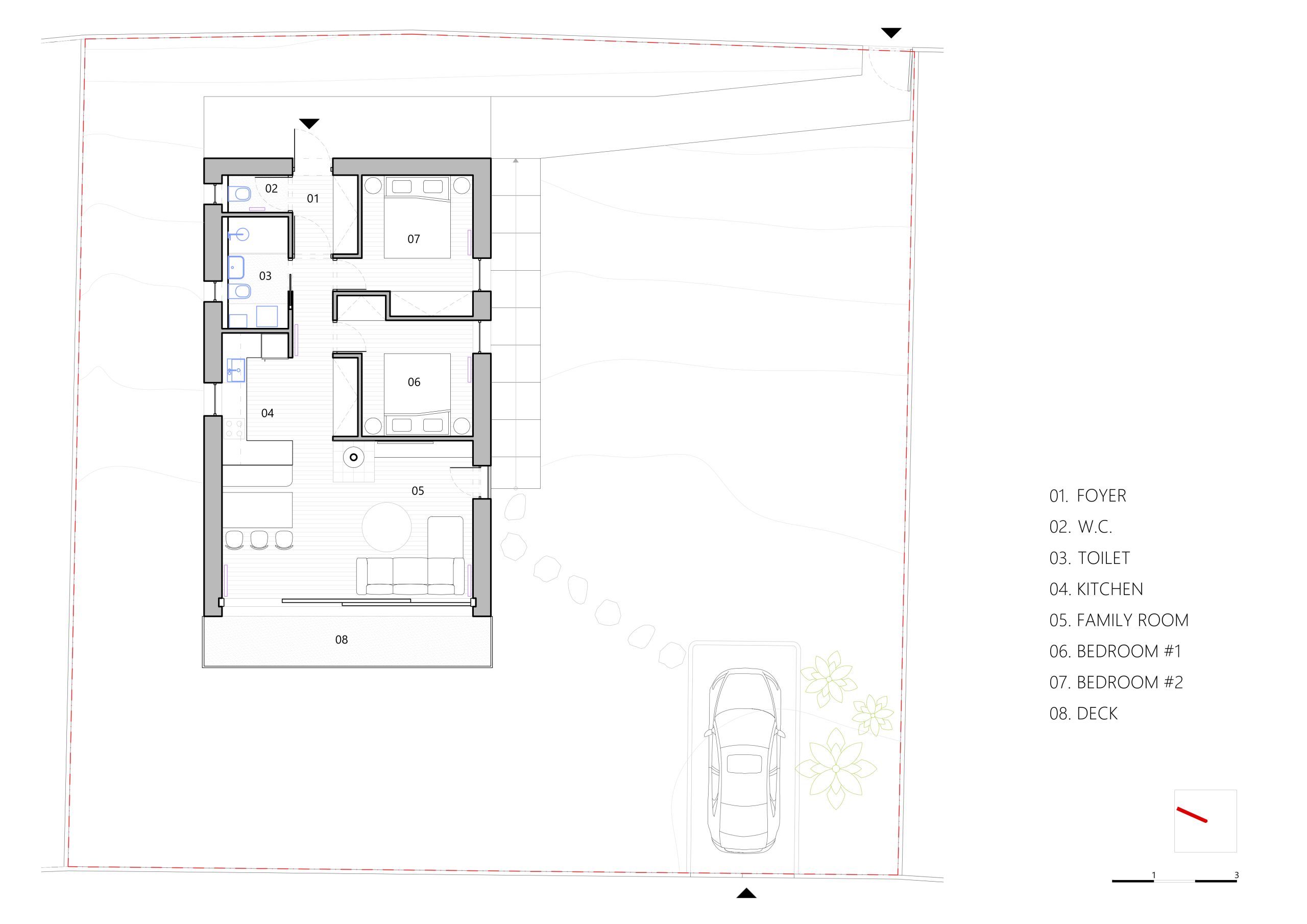
Project: Cabin in Nature

Year: 2024

Use: Residential

Description: This cabin in nature is meant to allow its users

to disconnect from city life and enjoy the greenery

surrounding them.